
Features:
- Net zero ready
- Triple glazed windows
- Mini split heating and cooling system
- High performance ventilation system with fresh air supplied to each bedroom
REQUEST INFORMATION
Gallery
PLAINFIELD Highlights
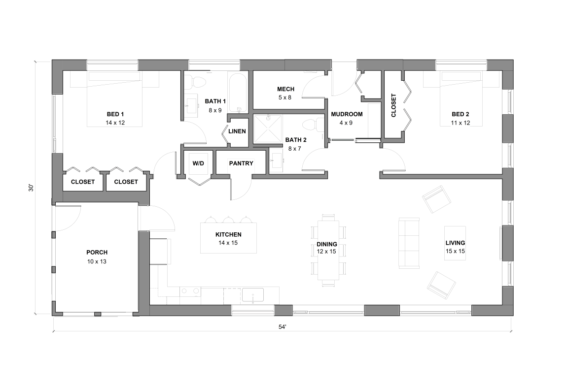
Plainfield A:
- Total Square Feet: 1,490
- Bedrooms: 2 – one primary suite with dedicated bath
- Bathrooms: 2
- Inset Porch (included)
- Open plan living area with kitchen, dining and living room
Plainfield B:
- Total Square Feet: 1,856 plus screen porch
- Bedrooms: 3 bedrooms – one primary suite with dedicated bath
- Bathrooms: 2
- Screen Porch
- Convertible Office for Fourth Bedroom
- Open plan living area with kitchen, dining and living room
DOWNLOAD DETAILS
Floorplans
DOWNLOAD FLOOR PLANS