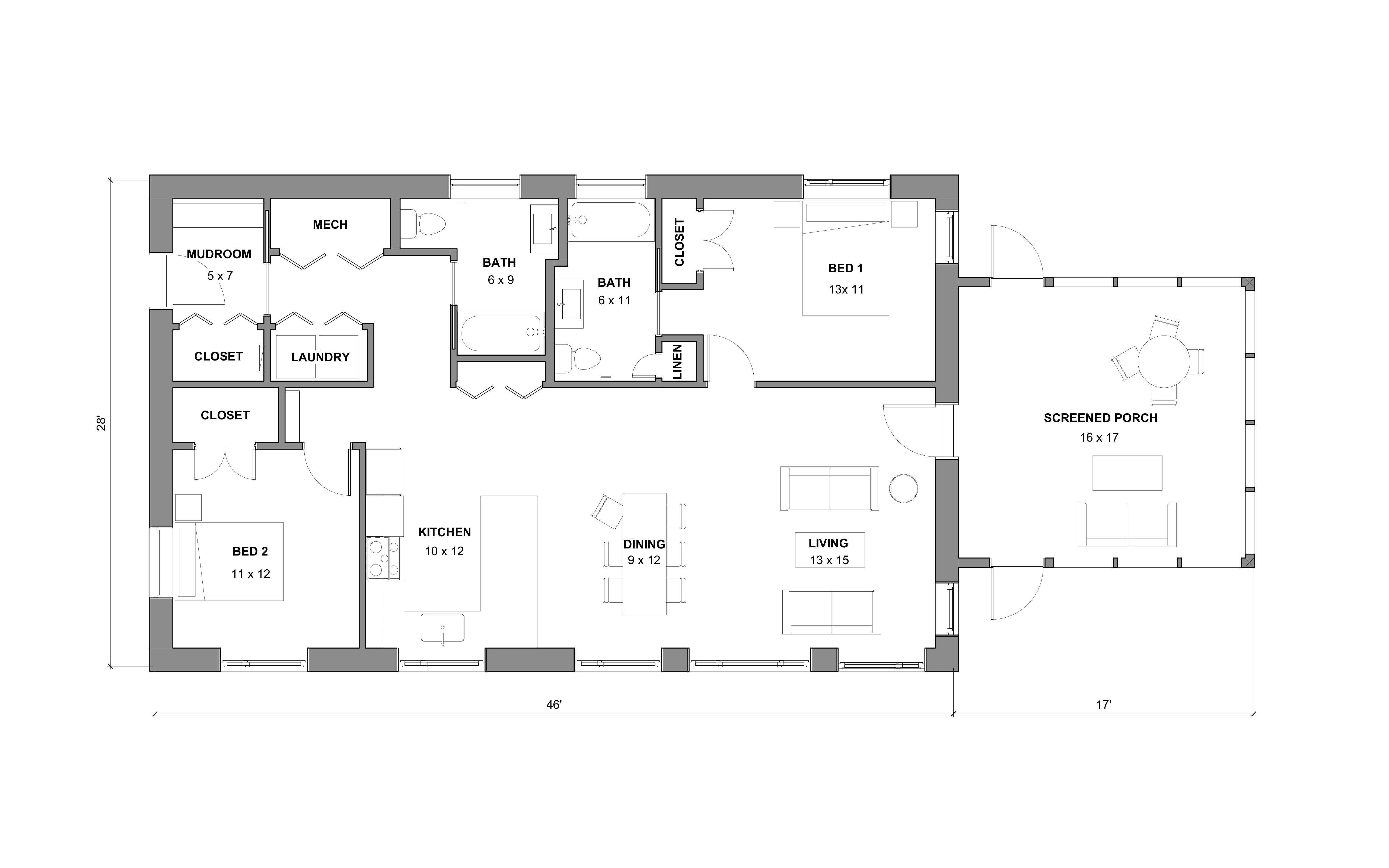
FEATURES:
- Square Footage: 1,288 plus screen porch
- Bedrooms: 2
- Bathrooms: 2
- Attached screen porch
- Net zero ready
- Triple glazed windows
- Mini split heating and cooling system
- High performance ventilation system with fresh air supplied to each bedroom

FEATURES:
